
Sprchové vaničky v klasickém stylu
Doprava po Praze ZDARMA ve středu 15.04.2026
Osobní odběr Praha - Prodejna INPO Horní Počernice ve středu 15.04.2026
TOPTRANS ve čtvrtek 16.04.2026
Termíny dodání jsou platné, pokud objednáte nyní, 12.04.2026 16:35 a pro 1 ks.
Používá se pro výrobu sprchových vaniček, van, umyvadel i dalších produktů. Vyrábí se ze směsi mletého vápence, sklářského písku, polyesterové pryskyřice a barviv. Výrobky z litého mramoru se vyznačují vysokou pevností, nulovým průhybem, stabilitou a elegantním designem.
| Značka | POLYSAN |
|---|---|
| Série | FLEXIA |
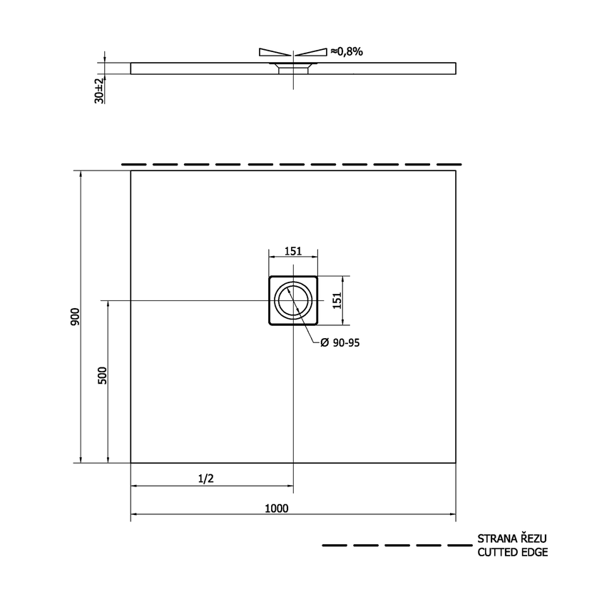
| Rozměr | 100x90x3 cm |
| Délka | 1000 mm |
| Šířka | 900 mm |
| Výška | 30 mm |
| Barva | Bílá |
| Materiál | Litý mramor |
| Tvar | Obdélníkové |
| Průměr odpadu | 90 mm |
| Hmotnost / ks | 48.0000 kg |
| Balení | 1 ks |
| EAN | 8590729080787 |
| Taric | 39221000 |
| Záruka | 2 roky |
Vanička z litého mramoru FLEXIA je pravým řešením zejména při výměně vany za sprchový kout. Elegantní design vaničky, ke které je na výběr sifon s krytkou ve třech barevných provedeních, dodá vašemu sprchovému koutu nezaměnitelný a originální vzhled.
Při zadávání rozměrů je důležité počítat s tolerancí na přesnost řezu. Sprchové podlahy FLEXIA jsou řezány na požadovaný rozměr na strojní formátovací pile s tolerancí ± 2 mm na metr řezu. Následný řez není pohledový.
Umístění otvoru na sifon je pevně daný a nelze ho změnit. Okolo sifonu je, vzhledem k pevnosti podlahy, doporučeno případný řez vést minimálně 15 cm od středu sifonu.
Z důvodu dilatace nedoporučujeme montáž vaniček pod obklad.
Na sprchové vaničky POLYSAN vyrobené z litého mramoru poskytujeme záruku 2 roky. Podmínkou záruky je správné usazení podle návodu.
Příklady atypického řezu:


Hodnotilo 0 uživatelů

Sprchové vaničky v klasickém stylu

KAZUKO sprchová vanička z litého mramoru, obdélník, 100x90cm, bílá 40336

Hladký povrch